![]() |
Cody-Kite |

Fig. 1. Left: Cody, back elevation Fig 2. Right: Side elevation

Fig. 3. Left main wing, nibbled by the teeth of time ... Fig 4. Right main wing
This is not intended to be a plan from which to build a kite, but rather a design description.
Important: All measurements on the diagrams are excluding seams and describe the situation after sewing all parts together. You have to add 2 cm to the upper and lower edges of the side and central panels, which are drawn separately. If you want to build the kite, it would be best to perform a sanity-check on all measurements. The following drawings describe the completed kite.
Overview graphics:
Fig. 5. Upper surface
The white vertical parts on the wings are the places for the spar pockets. The bamboo spars in the main wings are slightly curved by air pressure (BÄNDER FÜR ABSPANNUNG = loops for supporting lines of the wing).
Fig. 6. Lower surface:
The lower panels are made of four small pieces to prevent stretching due to flapping panels.(VORNE = front, WAAGEPUNKTE = bridle points)
Fig. 7. lower front panel
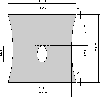
Fig. 8. Side panel
This is the left front side panel, referenced to fig. 5. The other side panels are mirror images. The reinforcing piece 7.5 × 14.0 behind the hole for the diagonal spars is located on the inside of the sail.
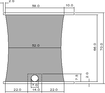
Fig. 9. Central panel
The measurements include the hem; this panel is sewn along the 0.5 cm seam to the upper and lower panels.
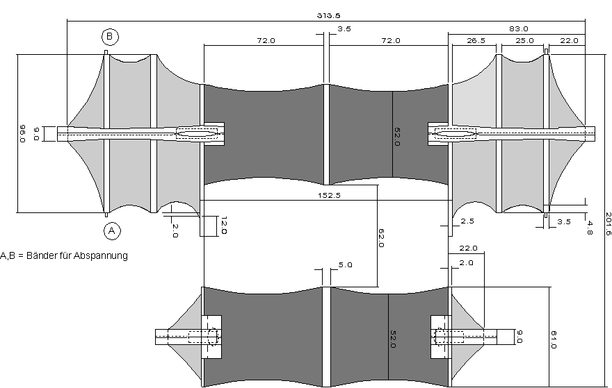
Fig. 10. Front elevation
The diagonal front spars are 260 cm long, the diagonal back spars are 200 cm
long. The longerons are 190 cm long.
The supporting lines for the wings are
drawn as dashed lines. Each line goes from the tips of the outer sail spars to
the lower wing tip on that side.
The diagonal spars are fixed on the lower end with tape loops on the
wing tips, on the top end the spars were fixed with hemp cord.
Unlike
other Cody kites, the side panels are not parallel.
The semi-circular marks
are the places for the longeron pockets. The pockets for the sail spars are sewn
to the outside of the wings; the sleeve pockets for the longerons are sewn
between upper- and side-panel. All sleeve pockets are made from 4 cm cotton
tape.
The sail consist of very fine cotton and is very stiff
(age ? impregnation ?). The edge binding tapes are also made from very tight
cotton. The spars are bamboo and the rigging lines are made of hemp (2
mm).
General construction
tips:
All parts of the sails are hemmed before sewing together. You therefore have to sew hem to hem and not sail to sail. On each side of the edge bindings you have to add 10cm to get additional loops for the spars.
Fig. 11. Lower wing tip with pocket. The pocket here is drawn before sewing for clarity.
Fig. 12. Hole for diagonal spar with pocket
Individual parts:
IMPORTANT: Edging tape must also be sewn round the loop, and the
remaining loop pieces folded (not shown in the drawing) so that the pressure
from the spars is spread evenly over the sail area.
Fig. 13. Half upper back wing
Individual parts (Wing spar and pocket):
Fig. 14. Wing with Pocket
Fig. 15. Half of the front upper sail (the other half is a mirror image).
Individual parts (just the pockets):
N.B.:
The sewn edges of the pockets change in width. From the
right the width of the hole is 9cm, over the fold 10cm, over the first spar
pocket 7cm, over the second spar pocket 6.5cm and the loop 9cm again. Because of
this the spar lies closer to the sail spars.
Fig. 16.: pocket, main wing
Here I was at a bit of a loss. The principle is simple: all the spars consist of two pieces notched to about 5cm in depth at their ends, bound together with hemp string and placed in loops. Tension is created in the panels by adjusting the different sized struts against each other. The front and rear panels are 62cm apart.
Fig. 17. Longerons
B: Lower longerons (bamboo):
Diameter about 10mm, i.e. smaller than the lower longerons. The main spar about 137cm, adjacent spar about 100cm overlapping and tying area about 23.5cm and overall length of 190cm. The longerons consist of a combination of longer and shorter struts in which on one side, the longer end is at the front and on the other side at the rear (to spread the weight evenly? for stability?)
It is noticeable that the whole of the underside of the kite (sail and struts) is much more rigid than the upper side.
Fig. 17. wing tip of the longerons
Fig. 18: Mounting of sail spars
You need eight sail spars, six for the front wing and two in the centre of the back wing. All sail spars are cut from bamboo, 2cm wide and 0.5 cm high. On one side, all the spars are given a 5mm semicircular notch where the line is fixed. The line (2mm hemp) is sewn through the pocket ends using a thick needle. All the pockets for the spars are sewn up on the outer edge as you look from the middle of the kite. The pockets themselves are made from a 4cm-wide cotton band and are always on the outer edge of the wing (see Fig.10).
Spars for central panel front and back: 4 × 66 cm
Spars for main wing: 4
× 98 cm
All that follows now is pure speculation. The diagonal spars were not included (maybe lost fifty years ago). The diagonal front spars have to be at least 260 cm long, better 10 cm more. The diagonal back spars have to be at least 2000 cm long and here again better 10 cm more. A circumference of 2cm for the bamboo spars seemed quite enough for the tension. Each end (as for the longerons) is notched and bound. The spars are hung underneath in loops and on the top stretched with a line. Whether or not the two spars were bound together in the middle, I can only guess.
The outer sail spar of the main wing (see Fig.
5: points A und B) is tied on both sides to the tip of the lower small
wing (see Fig.
6: point C) with two 120cm long anchor
lines. The anchor lines consist of 2mm strong hemp line. At points A and B on the wing,
6cm long bands are sewn as loops. At point C
the anchor lines are passed through the spar pocket with a thick needle. See
Fig.
10.
Between the front and rear panels these are stretched along the
struts. Beside this are 10cm long bands, some sewn on, some made up from
overlapping edge bindings. The gap between the front and rear panels is 62cm
overall.
The bridle line is again made from 2mm hemp line. The disposition of the
bridle lines is unusual even for a Cody kite; one bridle line joins both front
end points of the lower longeron and another joins the front points of the rear
panel to the same spot. At least the bridle points are the same as in the
well-known Cody War Kite (see also Fig.
6). Cody then knotted the two lines together with a simple loop so that
all the bridle legs ran together to one point.
The front bridle legs are
each 84cm long, the rear legs must have been between 137.5cm and 142cm. It is no
longer possible to say exactly; both rear legs are torn, and through stretching
are both of different lengths. As in all Cody models which closely resemble the
original, the bridle legs are unusually short for the size of the kite.
More information about S.F. Cody and his kites:
Books:
©1997 Thomas-Michael Rudolph